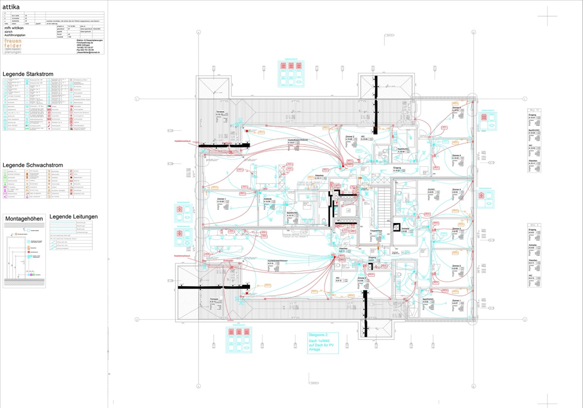
Zürich Witikon
Planungen
Aktuell
Gassler AG, Gretzenbach
Kadi AG, Langenthal
Thommen AG, Regensdorf
Immark AG, Regensdorf
Fischer AG, Reinach
Referenzen
Aarau
Aarau 2
Aarburg
Brittnau
Dürrenäsch
Emmenbrücke
Erlinsbach
Gränichen Moortal
Gränichen Rotodur
Gretzenbach
Härkingen
Hausen
Lenzburg
Oftringen Butterfly
Oftringen OMYA
Oftringen Wendepark
Oftringen Zentrum
Reiden
Pfaffnau
Reiden MFH
Reiden Helvesko
Rombach
Schöftland
Schönenwerd
Vordemwald
Walterswil
Wikon
Winikon
Zofingen
Zofingen Mühlethal
Zürich
Links
Kontakt
Neubau MFH Wiesliacher 50, Zürich - Witikon
Zürich - Wiesliacher
Index A
Index C
Index C2
Index D
Index E